Stadtvilla mit über 200 m² Grundriss
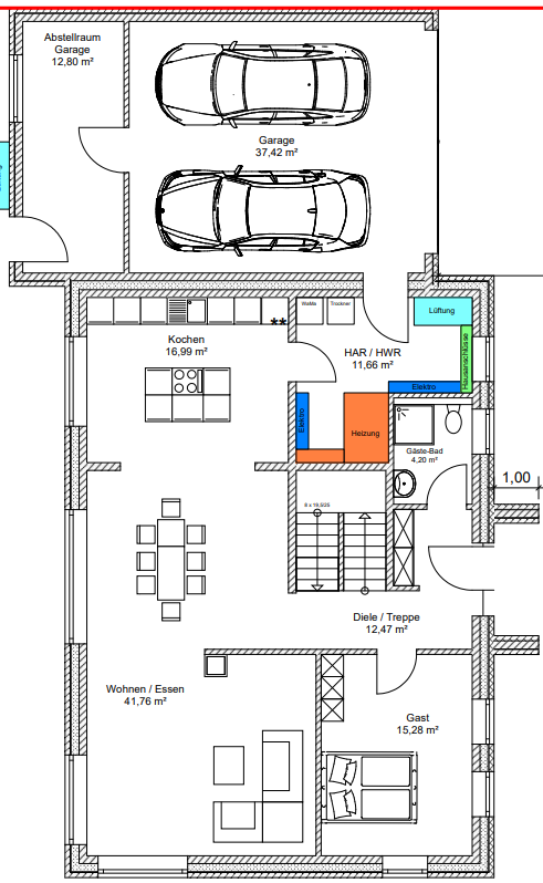
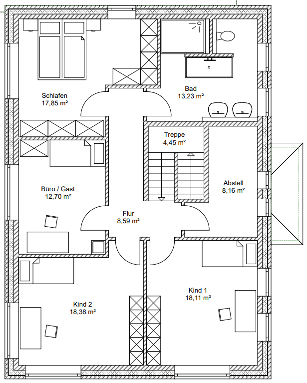
Stadtvilla 204
- Wohnfläche nach DIN: 204 m²
- Großzügiger Wohn-Essbereich
- Separates Gäste-/Arbeitszimmer
- 1 Schlafzimmer und 2 Kinderzimmer
- 2 Bäder
Grundriss Stadtvilla 204 qm - Stadtvilla bauen in Hamburg, Kiel
Stadtvilla Preise
Der Preis für diese moderne Stadtvilla mit über 200 m² Wohnfläche, Platz für 2 Kinderzimmer und Gäste- / Arbeitszimmer, die wir für Sie individuell als Architektenhaus im Energieeffizienz-Haus Standard bauen, beginnt ab 472.500 €.
Der abgebildete Stadtvilla-Grundriss wird selbstverständlich im Rahmen unserer Planungsleistung an Ihre Bedürfnisse / Grundstücksvorgaben angepasst.
Stadtvilla von AMBIENTE
Moderne Stadtvilla mit über 200 m² schlüsselfertig bauen
Diese moderne Stadtvilla mit ca. 230 m² Grundriss und Platz für 2 Kinderzimmer bauen wir Ihnen schlüsselfertig in Hamburg, Kiel, Neumünster, Norderstedt und im restlichen Schleswig-Holstein. Jeder Stadtvilla Grundriss wird individuell für Sie entworfen, so dass all Ihre Wünsche für Ihre moderne Stadtvilla erfüllt werden.
Weitere beliebte Häuser aus der Kategorie Stadtvilla
Der Stadtvilla Hausbau Standard bei AMBIENTE Immobilien
Mit uns bauen Sie Ihre Traumhaus-Stadtvilla als Energieeffizienz-Haus zum Festpreis mit hoher Ausstattung. Vergleichen Sie uns gerne mit dem Hausbaustandard der Bau-Branche und Sie werden feststellen: Mit AMBIENTE Immobilien, Ihrem Bauunternehmen aus Kiel, bauen Sie modern und preiswert Ihr Stadtvilla-Traumhaus. Mehr über unsere Leistungen beim schlüsselfertigen Hausbau erfahren Sie hier
