Mehrgenerationenhaus mit über 200 m² Grundriss

Mehrgenerationenhaus 230

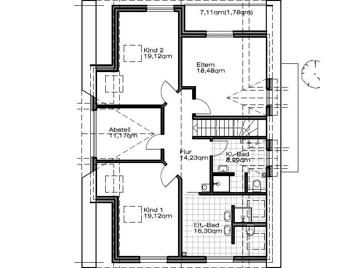
  • Zwei-Generationen-Haus
  • Wohnfläche nach DIN: 230 m²
  • Hauptwohnung:
    - Separates Gäste-/Arbeitszimmer
    - 2 Kinderzimmer
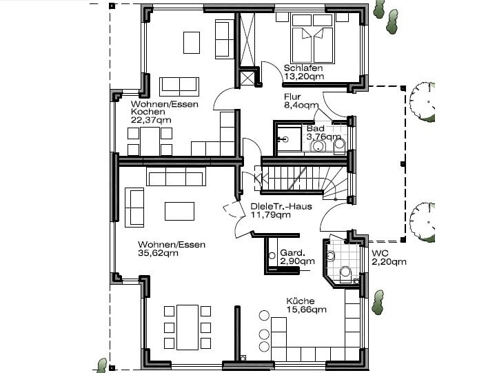
    - Schlafzimmer mit Zugang zur Dachterrasse
    - 2 Bäder zzgl. Gäste-WC

Mehrgenerationenhaus bauen in Hamburg oder Kiel

Mehrgenerationenhaus Preise

Der Preis für dieses Mehrgenerationenhaus mit 230 m² Wohnfläche, 2 Kinderzimmern im Haupthaus und Schlafzimmer mit eigener Dachterrasse, das wir für Sie individuell als Architektenhaus im Energieeffizienz-Haus Standard bauen, beginnt ab 531.500 €.

Wenn Sie sich für diesen abgebildeten Mehrgenerationenhaus-Grundriss entscheiden, sind Änderungen am Grundriss für unsere Bauherren selbstverständlich möglich.

Mehrgenerationenhaus von AMBIENTE

Mehrgenerationenhaus mit über 230 m²
schlüsselfertig bauen

Dieses Mehrgenerationenhaus bauen wir mit über 230 m² Grundriss schlüsselfertig in Hamburg, Kiel, Neumünster, Norderstedt und im restlichen Schleswig-Holstein. Jeden Mehrgenerationenhaus Grundriss werden wir für Sie individuell entwerfen, so dass all Ihre Wünsche für Ihr modernes Mehrgenerationenhaus erfüllt werden.

Wir benutzen Cookies

Wir nutzen Cookies auf unserer Website. Einige von ihnen sind essenziell für den Betrieb der Seite, während andere uns helfen, diese Website und die Nutzererfahrung zu verbessern (Tracking Cookies). Sie können selbst entscheiden, ob Sie die Cookies zulassen möchten. Bitte beachten Sie, dass bei einer Ablehnung womöglich nicht mehr alle Funktionalitäten der Seite zur Verfügung stehen.