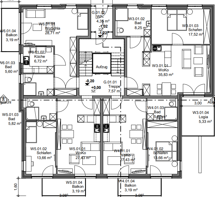
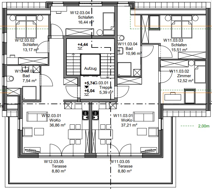
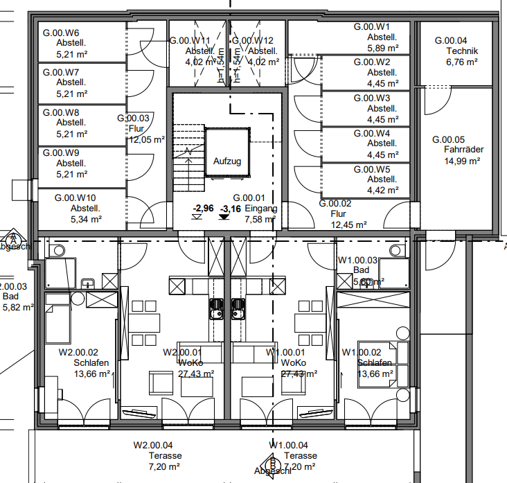
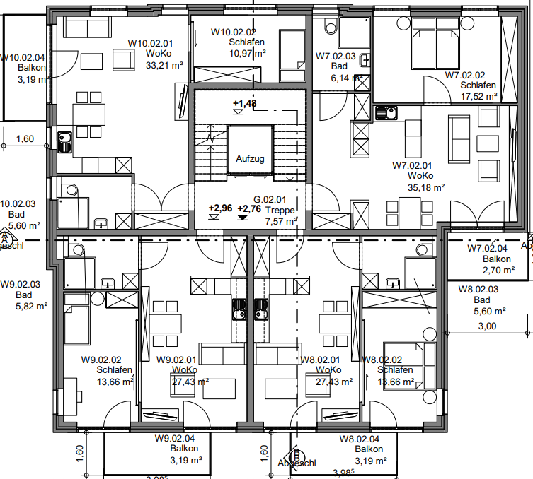
Mehrfamilienhaus mit 12 Wohneinheiten
Mehrfamilienhaus 830
- Wohnfläche nach DIN: 830 m²
- 12 Wohnungen von 47 m² bis 78 m²
- Mit Terrassen, Balkonen oder Dachterrassen
Mehrfamilienhaus schlüsselfertig bauen mit 12 Wohnungen
Mehrfamilienhaus Kosten / Preise
Die Kosten für dieses Mehrfamilienhaus mit 12 Wohnungen beginnen ab 1.995.000 €.
Der abgebildete Mehrfamilienhaus Grundriss wird selbstverständlich im Rahmen unserer Planungsleistung an Ihre Bedürfnisse / Grundstücksvorgaben angepasst. Die Mehrfamilienhaus Kosten variieren entsprechend der Grundrisse und der Ausstattung der 12 Wohnungen.
Mehrfamilienhaus von AMBIENTE
Mehrfamilienhaus mit 12 Wohnungen
schlüsselfertig bauen
Dieses Mehrfamilienhaus mit 12 Wohnungen bauen wir mit über 800 m² Grundriss und schlüsselfertig in Hamburg, Kiel, Neumünster, Norderstedt und im restlichen Schleswig-Holstein. Jeden Mehrfamilienhaus Grundriss werden wir für Sie individuell entwerfen, so dass all Ihre Wünsche für Ihr modernes Mehrfamilienhaus erfüllt werden.
