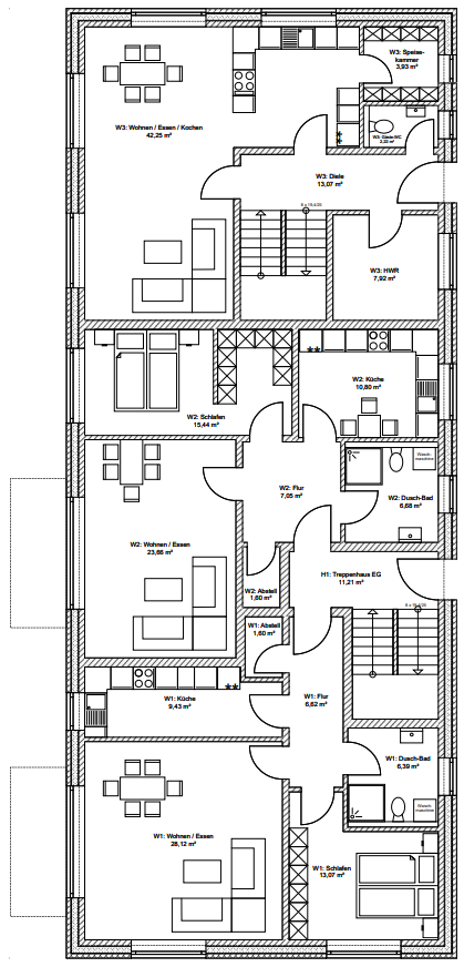
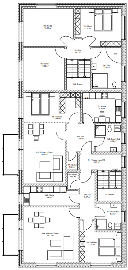
Mehrfamilienhaus mit 4 Wohneinheiten
Mehrfamilienhaus 420
- Wohnfläche nach DIN: 420 m²
- 4 Wohnungen mit ca. 68 m²
- 1 Reihenendhaus
- Mit Terrassen und Balkonen
Mehrfamilienhaus schlüsselfertig bauen mit 4 Wohnungen
Mehrfamilienhaus Kosten / Preise
Dieses Mehrfamilienhaus mit 4 Wohneinheiten bauen wir für Sie ab 1.045.000 €.
Der abgebildete Mehrfamilienhaus Grundriss wird selbstverständlich im Rahmen unserer Planungsleistung an Ihre Bedürfnisse / Grundstücksvorgaben angepasst. Die Mehrfamilienhaus Kosten variieren entsprechend der Grundrisse und der Ausstattung der 4 Wohneinheiten.
Mehrfamilienhaus von AMBIENTE
Mehrfamilienhaus mit 4 Wohnungen
schlüsselfertig bauen
Dieses Mehrfamilienhaus mit 4 Wohnungen bauen wir mit über 400 m² Grundriss und schlüsselfertig in Hamburg, Kiel, Neumünster, Norderstedt und im restlichen Schleswig-Holstein. Jeden Mehrfamilienhaus Grundriss werden wir für Sie individuell entwerfen, so dass all Ihre Wünsche für Ihr modernes Mehrfamilienhaus erfüllt werden.
