Landhaus mit über 250 m² Grundriss

Landhaus 255

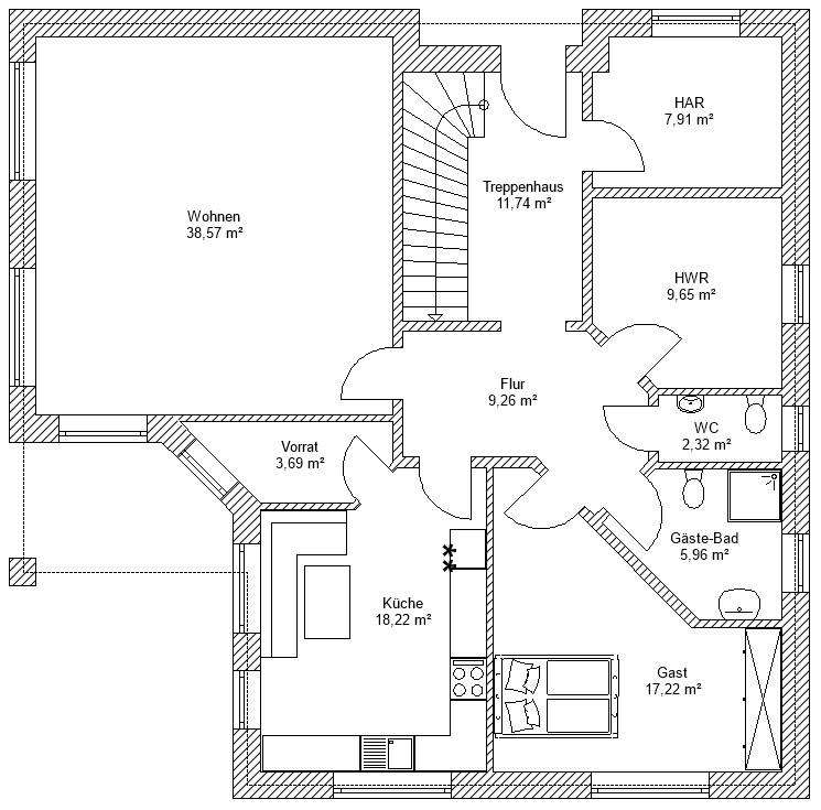
  • Wohnfläche nach DIN: 255 m²
  • Großzügiger Wohn-Essbereich
  • Separates Gäste-/Arbeitszimmer
  • 1 Schlafzimmer und 3 Kinderzimmer
  • 2 Bäder

Grundriss Landhaus 250 qm - Landhaus bauen in Hamburg, Kiel

Landhaus Preise

Der Preis für dieses Landhaus mit über 250 m² Wohnfläche und 3 Kinderzimmern, das wir für Sie individuell als Architektenhaus im Energieeffizienz-Haus Standard bauen, beginnt ab 581.500 €.

Der abgebildete Landhaus-Grundriss wird selbstverständlich im Rahmen unserer Planungsleistung an Ihre Bedürfnisse / Grundstücksvorgaben angepasst.

Landhaus von AMBIENTE

Landhaus mit über 250 m²
schlüsselfertig bauen

Dieses Landhaus 255 mit weit über 250 m² Grundriss bauen wir Ihnen schlüsselfertig in Hamburg, Kiel, Neumünster, Norderstedt und im restlichen Schleswig-Holstein. Jeden Landhaus Grundriss werden wir für Sie individuell entwerfen, so dass all Ihre Wünsche für Ihr modernes Landhaus erfüllt werden.

Der Landhaus Hausbau Standard bei AMBIENTE Immobilien

Mit uns bauen Sie Ihr Traumhaus-Landhaus als Energieeffizienz-Haus zum Festpreis mit hoher Ausstattung. Vergleichen Sie uns gerne mit dem Hausbaustandard der Bau-Branche und Sie werden feststellen: Mit AMBIENTE Immobilien, Ihrem Bauunternehmen aus Kiel, bauen Sie modern und preiswert Ihr Landhaus-Traumhaus. Mehr über unsere Leistungen beim schlüsselfertigen Hausbau erfahren Sie hier

Wir benutzen Cookies

Wir nutzen Cookies auf unserer Website. Einige von ihnen sind essenziell für den Betrieb der Seite, während andere uns helfen, diese Website und die Nutzererfahrung zu verbessern (Tracking Cookies). Sie können selbst entscheiden, ob Sie die Cookies zulassen möchten. Bitte beachten Sie, dass bei einer Ablehnung womöglich nicht mehr alle Funktionalitäten der Seite zur Verfügung stehen.