Bungalow mit über 140 m²
Bungalow 144
- Wohnfläche nach DIN: 144 m²
- Großzügiger Wohn-Essbereich
- Separates Gäste-/Arbeitszimmer
- 1 Schlafzimmer und Ankleide
- Bad zzgl. Gäste-WC
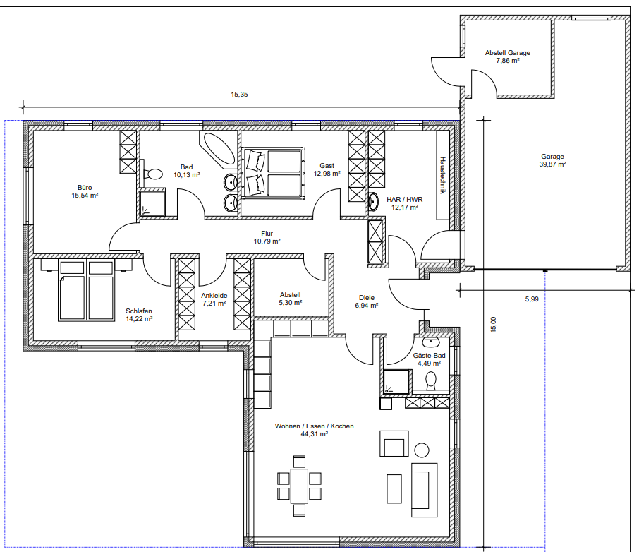
Grundriss Bungalow 150 qm - Bungalow Massivhaus bauen in Hamburg, Kiel
Bungalow Preise
Der Preis für diesen Bungalow mit knapp 150 m² und Platz für Schlafzimmer, Arbeits- und Gästezimmer, den wir für Sie individuell als Architektenhaus im Energieeffizienz-Haus Standard bauen, beginnt ab 385.000 €.
Der abgebildete Bungalow-Grundriss wird selbstverständlich im Rahmen unserer Planungsleistung an Ihre Bedürfnisse / Grundstücksvorgaben angepasst.
Bungalow von AMBIENTE
Bungalow mit knapp 150 m² Wohnfläche schlüsselfertig bauen
Diesen Bungalow knapp 150 m² Wohnfläche bauen wir Ihnen schlüsselfertig in Hamburg, Kiel, Neumünster, Norderstedt und im restlichen Schleswig-Holstein. Jeder Bungalow Grundriss wird für Sie individuell entworfen, so dass all Ihre Wünsche für Ihren modernen Bungalow erfüllt werden.
Weitere beliebte Häuser aus der Kategorie Bungalow
Der Bungalow Hausbau Standard bei AMBIENTE Immobilien
Mit uns bauen Sie Ihren Traumhaus-Bungalow als Energieeffizienz-Haus zum Festpreis mit hoher Ausstattung. Vergleichen Sie uns gerne mit dem Hausbaustandard der Bau-Branche und Sie werden feststellen: Mit AMBIENTE Immobilien, Ihrem Bauunternehmen aus Kiel, bauen Sie modern und preiswert Ihr Bungalow-Traumhaus. Mehr über unsere Leistungen beim schlüsselfertigen Hausbau erfahren Sie hier
