Bungalow mit über 200 m²
Bungalow 203
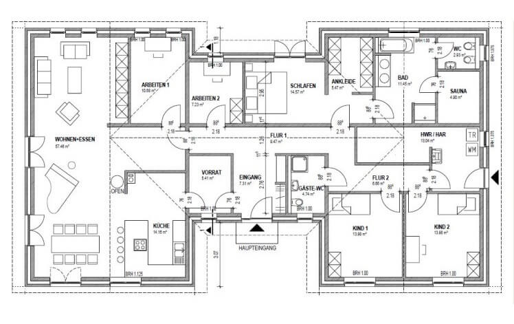
- Wohnfläche nach DIN: 203 m²
- Großzügiger Wohn-Essbereich
- 2 separate Gäste-/Arbeitszimmer
- 2 Kinderzimmer
- Schlafzimmer mit Ankleide und Bad „en suite“ mit Sauna
- 2 Bäder
Grundriss Bungalow 200 qm - Bungalow Massivhaus bauen in Hamburg, Kiel
Bungalow Preise
Der Preis für diesen Bungalow mit 203 m² Wohnfläche und Bad „en suite“ mit Sauna, den wir für Sie individuell als Architektenhaus im Energieeffizienz-Haus Standard bauen, beginnt ab 542.500 €.
Der abgebildete Bungalow-Grundriss wird selbstverständlich im Rahmen unserer Planungsleistung an Ihre Bedürfnisse / Grundstücksvorgaben angepasst.
Bungalow von AMBIENTE
Bungalow mit über 200 m² Grundriss schlüsselfertig bauen
Diesen Bungalow mit über 200 m² Grundriss und einem Schlafzimmer mit Ankleide und Sauna bauen wir Ihnen schlüsselfertig in Hamburg, Kiel, Neumünster, Norderstedt und im restlichen Schleswig-Holstein. Jeder Bungalow Grundriss wird für Sie individuell entworfen, so dass all Ihre Wünsche für Ihren modernen Bungalow erfüllt werden.
Weitere beliebte Häuser aus der Kategorie Bungalow
Der Bungalow Hausbau Standard bei AMBIENTE Immobilien
Mit uns bauen Sie Ihren Traumhaus-Bungalow als Energieeffizienz-Haus zum Festpreis mit hoher Ausstattung. Vergleichen Sie uns gerne mit dem Hausbaustandard der Bau-Branche und Sie werden feststellen: Mit AMBIENTE Immobilien, Ihrem Bauunternehmen aus Kiel, bauen Sie modern und preiswert Ihr Bungalow-Traumhaus. Mehr über unsere Leistungen beim schlüsselfertigen Hausbau erfahren Sie hier
