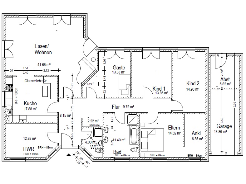
Bungalow mit knapp 180 m²

Bungalow 178

  • Wohnfläche nach DIN: 178 m²
  • Großzügiger Wohn-Essbereich
  • Separates Gäste-/Arbeitszimmer
  • 2 Kinderzimmer
  • Schlafzimmer mit Ankleide
  • 2 Bäder

Grundriss Bungalow 180 qm - Bungalow Massivhaus bauen in Hamburg, Kiel

Bungalow Preise

Der Preis für diesen Bungalow mit 178 m² Wohnfläche und Schlafzimmer mit Ankleide, den wir für Sie individuell als Architektenhaus im Energieeffizienz-Haus Standard bauen, beginnt ab 455.000 €.

Der abgebildete Bungalow-Grundriss wird selbstverständlich im Rahmen unserer Planungsleistung an Ihre Bedürfnisse / Grundstücksvorgaben angepasst.

Bungalow von AMBIENTE

Bungalow mit knapp 180 m²
schlüsselfertig bauen

Diesen Bungalow mit knapp 180 m² Grundriss und Schlafzimmer mit Ankleidezimmer bauen wir Ihnen schlüsselfertig in Hamburg, Kiel, Neumünster, Norderstedt und im restlichen Schleswig-Holstein. Jeder Bungalow Grundriss wird für Sie individuell entworfen, so dass all Ihre Wünsche für Ihren modernen Bungalow erfüllt werden.

Der Bungalow Hausbau Standard bei AMBIENTE Immobilien

Mit uns bauen Sie Ihren Traumhaus-Bungalow als Energieeffizienz-Haus zum Festpreis mit hoher Ausstattung. Vergleichen Sie uns gerne mit dem Hausbaustandard der Bau-Branche und Sie werden feststellen: Mit AMBIENTE Immobilien, Ihrem Bauunternehmen aus Kiel, bauen Sie modern und preiswert Ihr Bungalow-Traumhaus. Mehr über unsere Leistungen beim schlüsselfertigen Hausbau erfahren Sie hier

Wir benutzen Cookies

Wir nutzen Cookies auf unserer Website. Einige von ihnen sind essenziell für den Betrieb der Seite, während andere uns helfen, diese Website und die Nutzererfahrung zu verbessern (Tracking Cookies). Sie können selbst entscheiden, ob Sie die Cookies zulassen möchten. Bitte beachten Sie, dass bei einer Ablehnung womöglich nicht mehr alle Funktionalitäten der Seite zur Verfügung stehen.