Architektenhaus mit über 200 m² Grundriss
Architektenhaus 218
- Wohnfläche nach DIN: 218 m²
- Großzügiger Wohn-Essbereich
- Schlafzimmer mit Ankleide
- 3 Kinderzimmer
- separates Gäste-/Arbeitszimmer
- 2 Bäder und ein Gäste-Wc
- große Dachterrasse
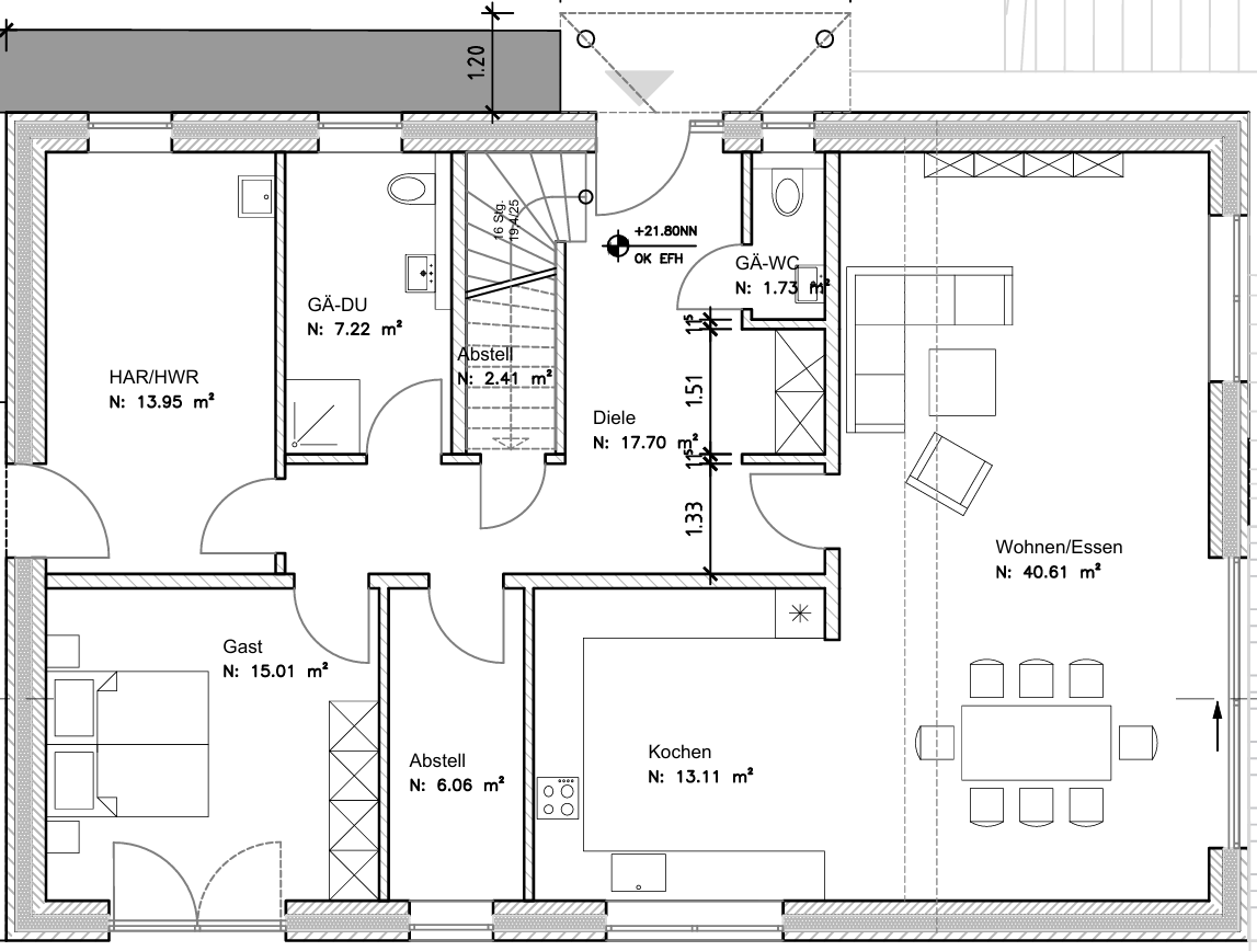
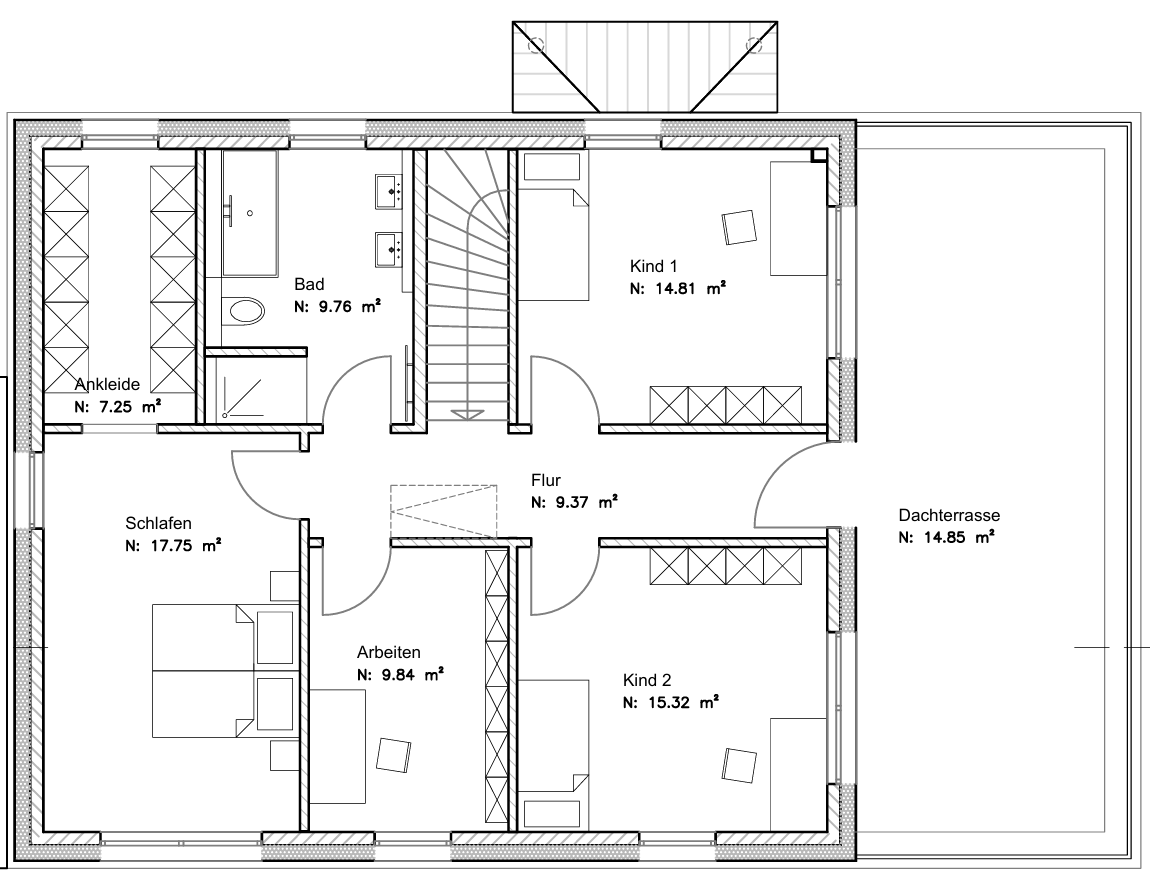
Grundriss Architektenhaus 200 qm - Architektenhaus bauen in Hamburg, Kiel
Architektenhaus Preise
Der Preis für dieses Architektenhaus mit über 200 m² Wohnfläche und Platz für 2 Kinderzimmer, Schlafzimmer mit Ankleide und 2 Bädern, das wir für Sie individuell als Architektenhaus im Energieeffizienz-Haus Standard bauen, beginnt ab 557.000 €.
Der abgebildete Architektenhaus-Grundriss wird selbstverständlich im Rahmen unserer Planungsleistung an Ihre Bedürfnisse / Grundstücksvorgaben angepasst.
Architektenhaus von AMBIENTE
Architektenhaus mit über 200 m² schlüsselfertig bauen
Dieses Architektenhaus 218 mit über 200 m² Grundriss bauen wir Ihnen schlüsselfertig in Hamburg, Kiel, Neumünster, Norderstedt und im restlichen Schleswig-Holstein. Jeden Architektenhaus Grundriss werden wir für Sie individuell entwerfen, so dass all Ihre Wünsche für Ihr modernes Architektenhaus erfüllt werden.
Weitere beliebte Häuser aus der Kategorie Architektenhaus
Der Architektenhaus Hausbau Standard bei AMBIENTE Immobilien
Mit uns bauen Sie Ihr Traumhaus-Architektenhaus als Energieeffizienz-Haus zum Festpreis mit hoher Ausstattung im Raum Hamburg, Kiel, Schleswig-Holstein. Vergleichen Sie uns gerne mit dem Hausbaustandard der Bau-Branche und Sie werden feststellen: Mit AMBIENTE Immobilien, Ihrem Bauunternehmen aus Kiel, bauen Sie modern und preiswert Ihr Architektenhaus-Traumhaus. Mehr über unsere Leistungen beim schlüsselfertigen Hausbau erfahren Sie hier
