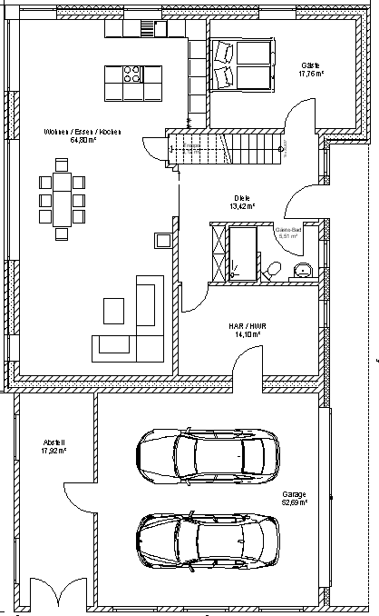
Architektenhaus mit über 250 m² Grundriss
Architektenhaus 254
- Wohnfläche nach DIN: 254 m²
- Großzügiger Wohn-Essbereich
- Separates Gäste-/Arbeitszimmer
- 1 Schlafzimmer und 2 Kinderzimmer
- 2 Bäder
Grundriss Architektenhaus 200 qm - Architektenhaus bauen in Hamburg, Kiel
Architektenhaus Preise
Der Preis für dieses Architektenhaus mit über 250 m² Wohnfläche und Platz für 2 Kinderzimmer, das wir für Sie individuell als Architektenhaus im Energieeffizienz-Haus Standard bauen, beginnt ab 643.000 €.
Der abgebildete Architektenhaus-Grundriss wird selbstverständlich im Rahmen unserer Planungsleistung an Ihre Bedürfnisse / Grundstücksvorgaben angepasst.
Architektenhaus von AMBIENTE
Architektenhaus mit über 250 m² schlüsselfertig bauen
Dieses Architektenhaus 254 mit über 250 m² Grundriss bauen wir Ihnen schlüsselfertig in Hamburg, Kiel, Neumünster, Norderstedt und im restlichen Schleswig-Holstein. Jeden Architektenhaus Grundriss werden wir für Sie individuell entwerfen, so dass all Ihre Wünsche für Ihr modernes Architektenhaus erfüllt werden.
Weitere beliebte Häuser aus der Kategorie Architektenhaus
Der Architektenhaus Hausbau Standard bei AMBIENTE Immobilien
Mit uns bauen Sie Ihr Traumhaus-Architektenhaus als Energieeffizienz-Haus zum Festpreis mit hoher Ausstattung im Raum Hamburg, Kiel, Schleswig-Holstein. Vergleichen Sie uns gerne mit dem Hausbaustandard der Bau-Branche und Sie werden feststellen: Mit AMBIENTE Immobilien, Ihrem Bauunternehmen aus Kiel, bauen Sie modern und preiswert Ihr Architektenhaus-Traumhaus. Mehr über unsere Leistungen beim schlüsselfertigen Hausbau erfahren Sie hier
